Apartment Remodel – Prospect Heights, 630 Washington Avenue, Brooklyn, NY 11238
Project Description
This Brooklyn apartment renovation focused on modernizing and refreshing the lower-level living space while addressing structural and finish repairs. DCON Renovations managed the full project, from demolition to final touch-ups, with meticulous attention to detail, site protection, and daily supervision.
The scope included patch and plaster repairs, painting throughout the lower level, and refinishing damaged hardwood floors. The kitchen was completely gutted and reimagined with new wall and base cabinets, an island, countertops, backsplash, and appliances. Under-cabinet LED lighting and upgraded outlets added function and elegance.
Additional improvements included new trim and baseboard installation, flooring repairs near balcony doors, and a fresh paint finish with accent updates for a clean, cohesive aesthetic. The result is a warm, modern Brooklyn apartment blending craftsmanship with lasting comfort and style.
Project Type
Apartment Remodel
Location
Brooklyn, NY
Style
Modern Transitional
Value
$180,000
Kind words from our customers
We value your opinion above all else. Listen to some local NYC homeowner as he shares his firsthand experience with our remodeling services.
Features
- HVAC & Electrical Fixture Reinstallation
- Complete Kitchen Renovation
- Electrical & Lighting Upgrades
- New Cabinetry, Island & Backsplash
- Sheetrock & Plaster Repairs
- Baseboard & Trim Replacement
- Floor Refinishing & Tile Installation
- Accent Wall Painting
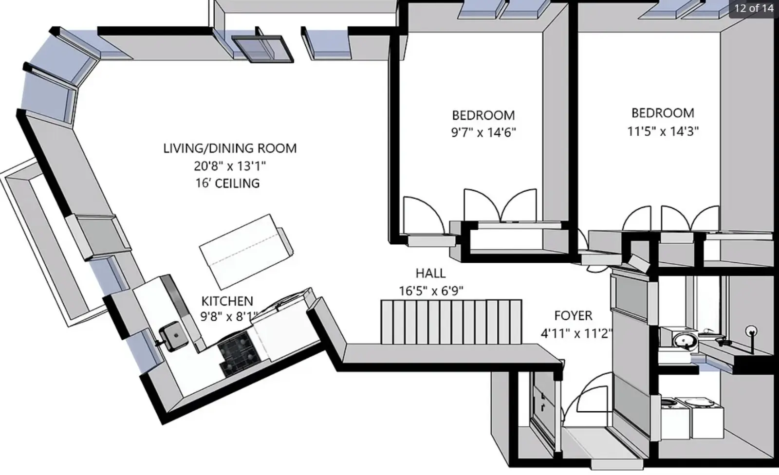
Floorplans

Floorplans

Features
- Complete Kitchen Renovation
- New Cabinetry, Island & Backsplash
- Electrical & Lighting Upgrades
- Floor Refinishing & Tile Installation
- Baseboard & Trim Replacement
- Accent Wall Painting
- Sheetrock & Plaster Repairs
- HVAC & Electrical Fixture Reinstallation
Kind words from our customers
We value your opinion above all else. Listen to some local NYC homeowner as he shares his firsthand experience with our remodeling services.
Ready to discuss your project?
DCON Renovations creates beautiful spaces by renovating chic, modern apartments, bathrooms, kitchens, and home interiors in NYC and Brooklyn.
Related Projects
This Prospect Heights renovation focused on restoring and modernizing the home with elevated design, ensuring precision and craftsmanship.
This West 90th Street townhouse renovation showcases the pinnacle of luxury living on the Upper West Side.
This meticulously renovated townhome offers unmatched sophistication and functionality, covering 7,000 square feet across seven stories.






