Apartment Remodel – Prospect Heights, 630 Washington Avenue, Brooklyn, NY 11238
Project Description
This Prospect Heights renovation focused on restoring and modernizing the home with elevated design and functionality. DCON Renovations managed the project from start to finish, ensuring protection, precision, and craftsmanship throughout.
The scope included floor and wall repairs, new doors, trims, and moldings, and a full kitchen upgrade featuring new cabinets, island, sink, faucet, and appliances. The loft space received a custom half (Dutch) door and new hatch ladder, enhancing both access and style.
DCON refinished the hardwood floors and staircase, applied fresh paint with accent walls, and upgraded all HVAC grills, electrical fixtures, and outlets. The result, a refreshed, modern duplex blending warmth, functionality, and timeless Brooklyn charm.
Project Type
Apartment Remodel
Location
Brooklyn, NY
Style
Modern Transitional
Value
$200,000
Kind words from our customers
We value your opinion above all else. Listen to some local NYC homeowner as he shares his firsthand experience with our remodeling services.
Features
- Floor and Wall Repairs
- New Kitchen Cabinets and Island
- Custom Half (Dutch) Loft Door & Ladder Installation
- HVAC Grill Replacement
- Floor Refinishing and Stain Matching
- Full Interior Painting with Accent Walls
- Electrical and Lighting Upgrades
- New Bedroom Cabinets and Closets
- Door, Trim, and Molding Installation
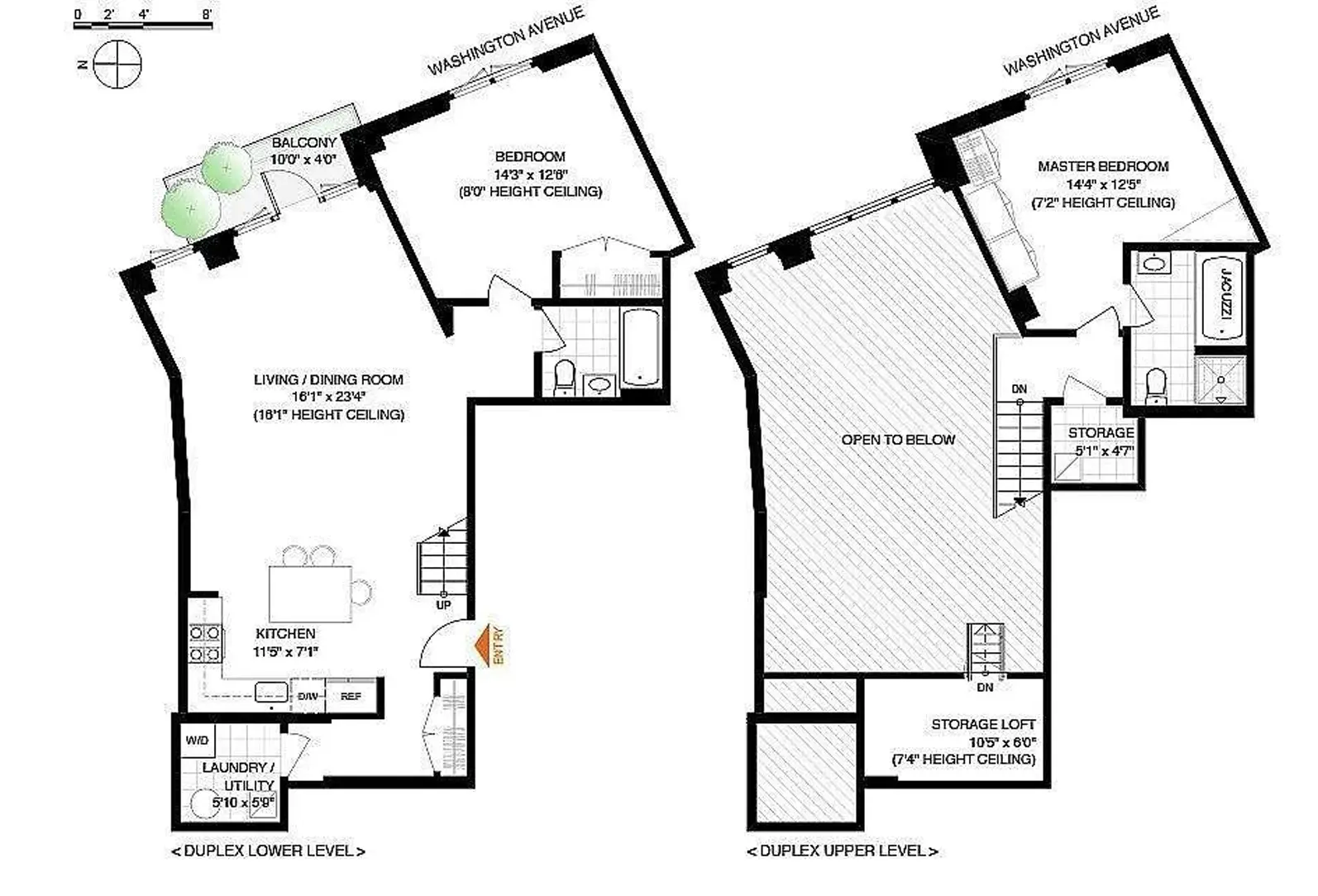
Floorplans

Floorplans

Features
- Floor and Wall Repairs
- New Kitchen Cabinets and Island
- Custom Half (Dutch) Loft Door & Ladder Installation
- Full Interior Painting with Accent Walls
- Floor Refinishing and Stain Matching
- HVAC Grill Replacement
- Electrical and Lighting Upgrades
- New Bedroom Cabinets and Closets
- Door, Trim, and Molding Installation
Kind words from our customers
We value your opinion above all else. Listen to some local NYC homeowner as he shares his firsthand experience with our remodeling services.
Ready to discuss your project?
DCON Renovations creates beautiful spaces by renovating chic, modern apartments, bathrooms, kitchens, and home interiors in NYC and Brooklyn.
Related Projects
This apartment renovation focused on modernizing and refreshing lower-level living space while addressing structural and finish repairs.
This West 90th Street townhouse renovation showcases the pinnacle of luxury living on the Upper West Side.
This meticulously renovated townhome offers unmatched sophistication and functionality, covering 7,000 square feet across seven stories.












