Central Park West, Manhattan, NY | Historic Restoration
Project Description
Located along Central Park West, this full-scale historic restoration and modernization project by DCON Renovations revitalized a late-1800s NYC building while preserving its timeless architectural charm.
Under the leadership of Project Manager Shiloh, the DCON team delivered a seamless design-build renovation, managing everything from landmark approvals and permitting to construction execution. Despite the challenges of a traditional five-story walk-up, materials and workflow were strategically coordinated to ensure an efficient and on-schedule process.
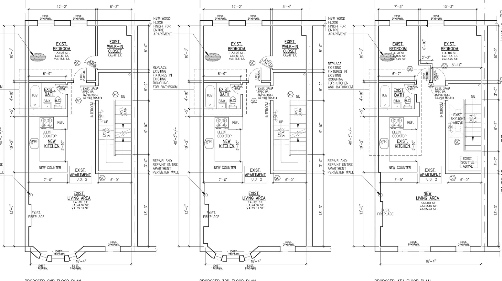
The restoration included window replacements, façade repair, and a complete electrical upgrade to meet modern safety standards. DCON also installed split-unit HVAC systems, upgraded intercom and in-wall wiring, and restored the original fireplaces to enhance comfort and preserve historic character.
Each unit was transformed through gut kitchen and bathroom renovations, new engineered hardwood flooring, and contemporary finishes, blending classic architecture with modern functionality and design.
Project Type
Historic Restoration & Design-Build
Location
Central Park West, Manhattan, NY
Style
Classic Meets Modern
Value
$2.4 Million (Approx.)
Restoration Process
Join us on this incredible journey as DCON Renovations transforms a historic Central Park West building — originally built in the late 1800s — through a full-scale restoration and modernization project in 2024.
Features
- Full Design-Build Package & Landmark Approvals
- Window Replacement & Façade Restoration
- Complete Electrical System Upgrade
- Split-Unit HVAC Installation
- Fireplace Restoration
- Gut Kitchen & Bathroom Renovations
- New Engineered Hardwood Flooring
- Intercom & In-Wall Wiring Upgrades
Floorplans

Floorplans

Features
- Full Design-Build Package & Landmark Approvals
- Window Replacement & Façade Restoration
- Complete Electrical System Upgrade
- Split-Unit HVAC Installation
- Gut Kitchen & Bathroom Renovations
- Fireplace Restoration
- New Engineered Hardwood Flooring
- Intercom & In-Wall Wiring Upgrades
Kind words from our customers
We value your opinion above all else. Listen to some local NYC homeowner as he shares his firsthand experience with our remodeling services.
Ready to discuss your project?
DCON Renovations creates beautiful spaces by renovating chic, modern apartments, bathrooms, kitchens, and home interiors in NYC and Brooklyn.
Related Projects
This apartment renovation focused on modernizing and refreshing lower-level living space while addressing structural and finish repairs.
This Prospect Heights renovation focused on restoring and modernizing the home with elevated design, ensuring precision and craftsmanship.
This West 90th Street townhouse renovation showcases the pinnacle of luxury living on the Upper West Side.



























